343 SFT ADU RENDER

Floorplan Name: Ivy
"Ivy" is inspired by growth and harmony. This small yet comfortable space symbolizes the peaceful and harmonious environment that the name "Ivy" suggests.

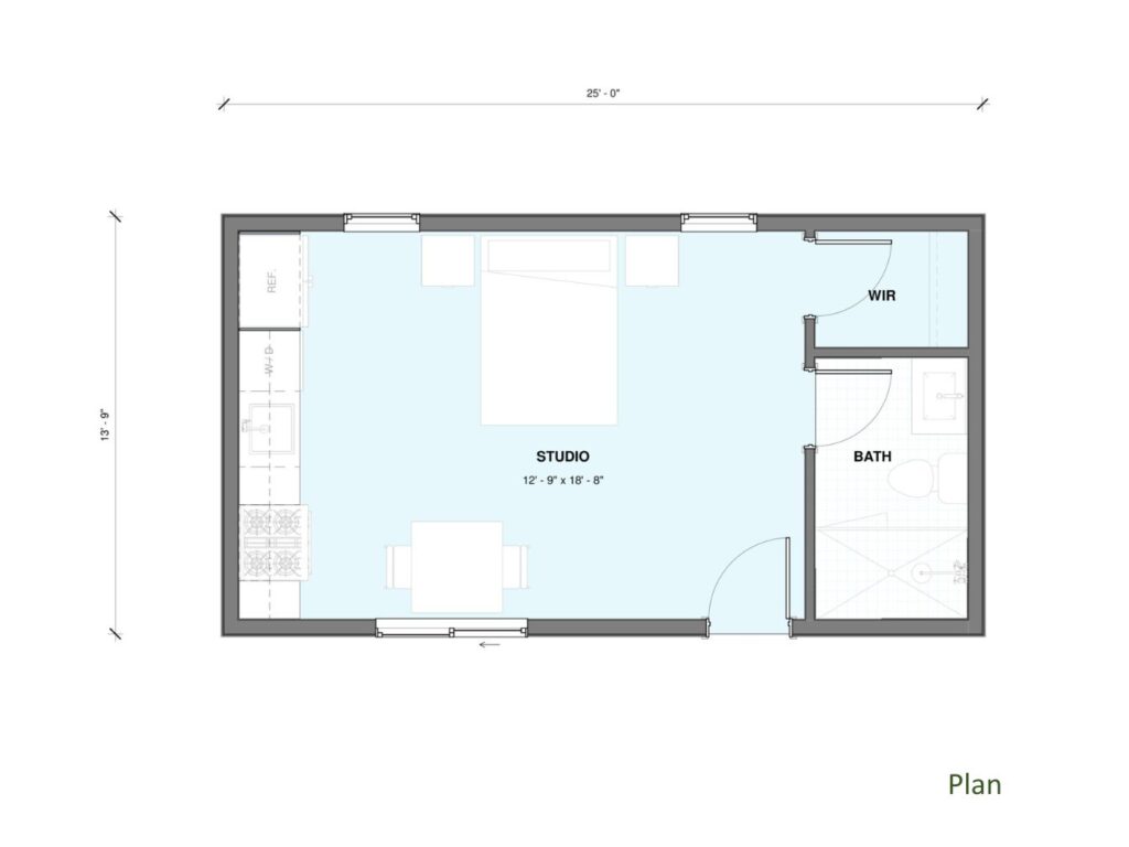
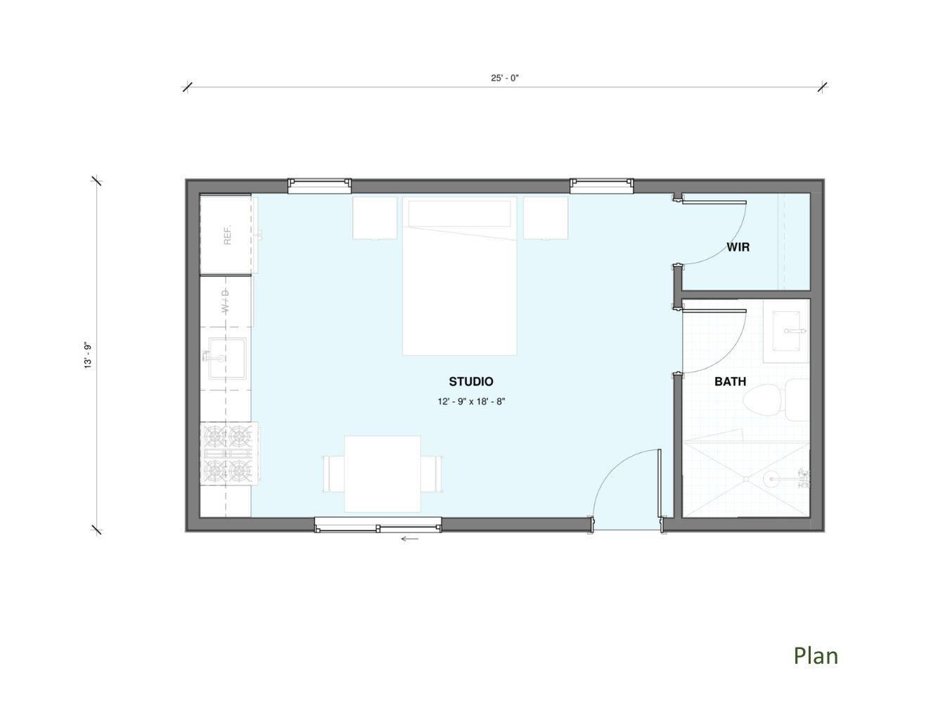
Studio with 1 Bathroom - 343 Square Foot

Elevate your living experience with ADU International's Studio with 1 Bathroom - 343 Square Foot ADU Unit. Designed to blend functionality and style seamlessly, this living space offers a versatile solution to cater to your unique needs and preferences.

Studio with 1 Bathroom

1-Bed • 1 Bath • 343 SQ. FT

Discover the essence of luxury living in our meticulously crafted Studio ADU Unit. Boasting a size of 343 square feet, this layout features an open design that enhances spaciousness, complemented by a separate bathroom for added privacy. The unit is thoughtfully designed to maximize comfort and convenience, creating a haven that resonates with modern elegance.

Embrace the benefits of owning a Studio ADU Unit as it opens up a realm of possibilities for your property. Whether you seek a guest retreat, a home office, or an additional living space, this unit provides a flexible solution to expand your home. Its compact yet functional layout offers a perfect balance between practicality and sophistication, catering to your evolving lifestyle needs with ease.

A Studio ADU Unit is an ideal choice for those looking to enhance their living space without compromising on quality or style. With its modern amenities and well-planned layout, this unit transforms living into an experience filled with comfort and functionality. Elevate your property's value and utility by investing in a Studio ADU Unit that sets the standard for refined living.

All The Features You Will Ever Need in Your ADU Unit

ADU UNIT FEATURES 1

Design and Plans Included

ADU UNIT FEATURES 2

Fully Custom Built on Your Property

ADU UNIT FEATURES 3

Open Concept Kitchen

ADU UNIT FEATURES 4

All Appliances Are Included

ADU UNIT FEATURES 5

A Full Bathroom

ADU UNIT FEATURES 6

Quartz Countertops

door

6 Panel Doors

ADU UNIT FEATURES 8

Board and Batten Siding

ADU UNIT FEATURES 9

Slow Close Cabinets and Drawers

ADU UNIT FEATURES 10

Mini Split Heating and Air System

ADU UNIT FEATURES 11

Composition Shingle Roof

ADU UNIT FEATURES 12

Design an ADU Unit that Matches Your Home

ADU UNIT FEATURES 13

Customizable Features

ADU UNIT FEATURES 14

Luxury Vinyl Flooring

Ready to get started?

Financing Options Available

Explore various financing options available to make owning a Studio ADU Unit a reality. Our team can guide you through the financing process, ensuring transparency and clarity in accessing financial solutions tailored to your budget and requirements.

Frequently Asked Questions

A Guest House typically serves as temporary accommodation for visitors and may not always meet the criteria for standalone living. In contrast, an Accessory Dwelling Unit (ADU) is a self-contained living space with its own amenities, designed for independent living.

Ready to Get Started?

Are you ready to enhance your home with a customized ADU designed to fit your lifestyle? Get in touch with ADU International now to arrange your consultation and start the journey to redesigning your living area.