1000 SFT ADU RENDER

Floorplan Name: Savannah
"Savannah" evokes a sense of openness and beauty, perfect for a spacious family home. This unit's size offers freedom and natural beauty, ideal for a large and comfortable family residence.

2 Bedroom with 2 Bathroom - 1000 Square Foot

ADU International is proud to be the top choice for high-end detached Accessory Dwelling Units (ADUs) that revolutionize contemporary living. Experience a fusion of innovation and elegance in personalized living spaces tailored to suit your individual lifestyle. From our 2-bedroom, 2-bathroom, 1,000-square-foot ADU unit, witness our dedication to superior quality and craftsmanship. Delve into a harmonious mix of modern design, practical sophistication, and adaptability as you enhance your living standards with ADU International.

2 Bedroom with 2 Bathroom

2-Bed • 2 Bath • 1,000 SQ. FT

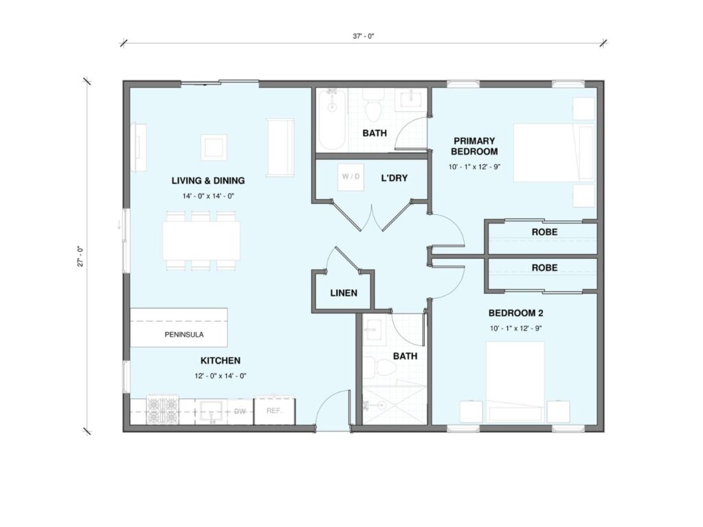
Elevate your living space with ADU International's 2-bedroom, 2-bathroom, 1,000 square foot detached ADU unit, where luxury meets practicality. Step into a world of contemporary design and modern charm as you explore the spacious layout that defines this living masterpiece. With dimensions measuring 37' - 0'' by 27' - 0", this ADU unit offers ample room for comfortable living while maintaining a sense of elegance and style. Embrace the versatility of this detached ADU as it opens doors to endless possibilities, whether you desire a guest house, home office, or a rental property - the choice is yours.

Perfectly balancing form and function, this detached ADU boasts a thoughtfully curated layout that maximizes space utilization without compromising on aesthetic appeal. The innovative design seamlessly integrates the open-concept kitchen, dining, and living area with two well-appointed bedrooms and bathrooms, creating a harmonious living environment that speaks to your individuality. Discover the joy of personalized living as you customize this versatile ADU to suit your specific needs and lifestyle preferences.

Immerse yourself in the seamless flow of modern design elements, from the meticulously planned layout to the high-end finishes that adorn every corner of this 1,000 square foot living space. Embrace the value of investing in a detached ADU of this size, knowing that it offers not only additional living quarters but also a unique opportunity to enhance your property's value and functionality. With ADU International, your dream of owning a bespoke living space becomes a reality crafted with expertise and precision.

Beautifully Designed ADU Units with All Of The Features You Will Love

ADU UNIT FEATURES 1

Design and Plans Included

ADU UNIT FEATURES 2

Fully Custom Built on Your Property

ADU UNIT FEATURES 3

Open Concept Kitchen

ADU UNIT FEATURES 4

All Appliances Are Included

ADU UNIT FEATURES 5

A Full Bathroom

ADU UNIT FEATURES 6

Quartz Countertops

door

6 Panel Doors

ADU UNIT FEATURES 8

Board and Batten Siding

ADU UNIT FEATURES 9

Slow Close Cabinets and Drawers

ADU UNIT FEATURES 10

Mini Split Heating and Air System

ADU UNIT FEATURES 11

Composition Shingle Roof

ADU UNIT FEATURES 12

Design an ADU Unit that Matches Your Home

ADU UNIT FEATURES 13

Customizable Features

ADU UNIT FEATURES 14

Luxury Vinyl Flooring

Ready to get started?

Financing Options Available

When it comes to financing your ADU project, ADU International offers flexible options to make your dream a reality. Our team can guide you through the financing process, providing transparency and support every step of the way to ensure a smooth and stress-free experience.

Frequently Asked Questions

An ADU is a secondary housing unit located on the same property as a primary residence, providing independent living space for homeowners or tenants.

Ready To Get Started?

Contact ADU International today to embark on your journey towards owning a luxurious and functional detached ADU unit that redefines your living space