630 SFT ADU RENDER

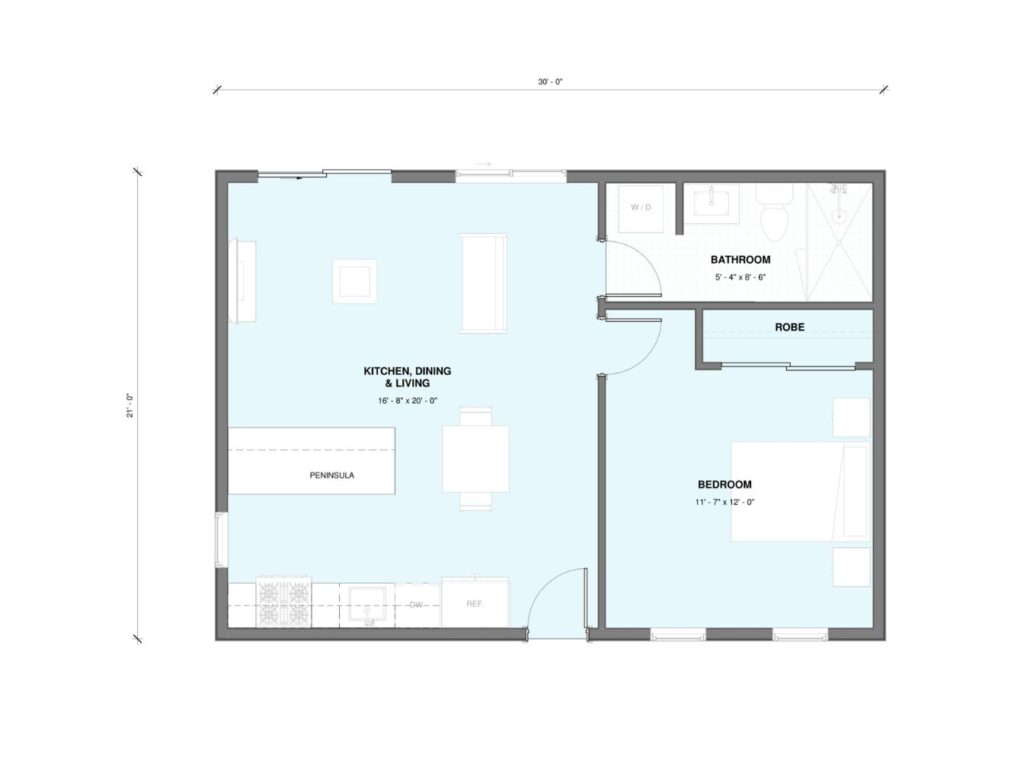
Floorplan Name: Sierra
"Sierra" suggests a strong and beautiful home, ideal for a robust and appealing living space. This unit's size provides a comfortable and attractive living environment.

1 Bedroom with 1 Bathroom - 630 Square Foot

ADU International is proud to specialize in creating exceptional detached ADU units that redefine homeownership. Our 1 Bedroom, 1 Bathroom ADU Unit spanning 630 square feet is designed to elevate your living space and cater to your unique needs. As expert ADU contractors, we take pride in offering top-notch craftsmanship, personalized solutions, and a seamless experience from consultation to completion.

1 Bedroom with 1 Bathroom

1-Bed • 1 Bath • 630 SQ. FT

Step into a world of modern elegance with our 1 Bedroom, 1 Bathroom ADU Unit. This thoughtfully designed space spans 630 square feet and combines functionality with style to create a versatile living environment. As expert ADU contractors, we have meticulously crafted this unit to provide a seamless blend of comfort and sophistication.

The open layout concept of the ADU unit features an inviting kitchen, dining, and living area, offering a harmonious space for daily living and entertaining. The bedroom serves as a cozy sanctuary, while the bathroom incorporates a washer and dryer area for added convenience. Every detail has been carefully considered, from the Quartz countertops and French front entry doors to the mini-split heating and air system, ensuring a modern and luxurious living experience. With customizable features available, you can tailor the ADU unit to complement your home seamlessly, creating a space that truly reflects your lifestyle.

Tremendous Benefits 

The versatility of this ADU unit allows for flexible usage, whether accommodating guests, creating a home office, or expanding living areas. Not only does installing an ADU unit increase the overall value of your property, but it also provides the opportunity for rental income generation through leasing options. Efficiently designed to optimize space utilization without sacrificing comfort, the 1 Bedroom, 1 Bathroom ADU seamlessly integrates with your existing property, enhancing aesthetics and functionality. Experience the advantages of modern design, personalized solutions, and expert craftsmanship with our exceptional ADU units designed to cater to your unique needs and preferences.

Beautifully Designed ADU Units with All Of The Features You Will Love

ADU UNIT FEATURES 1

Design and Plans Included

ADU UNIT FEATURES 2

Fully Custom Built on Your Property

ADU UNIT FEATURES 3

Open Concept Kitchen

ADU UNIT FEATURES 4

All Appliances Are Included

ADU UNIT FEATURES 5

A Full Bathroom

ADU UNIT FEATURES 6

Quartz Countertops

door

6 Panel Doors

ADU UNIT FEATURES 8

Board and Batten Siding

ADU UNIT FEATURES 9

Slow Close Cabinets and Drawers

ADU UNIT FEATURES 10

Mini Split Heating and Air System

ADU UNIT FEATURES 11

Composition Shingle Roof

ADU UNIT FEATURES 12

Design an ADU Unit that Matches Your Home

ADU UNIT FEATURES 13

Customizable Features

ADU UNIT FEATURES 14

Luxury Vinyl Flooring

Ready to get started?

Financing Options Available

Our team at ADU International understands the importance of flexible financing options to make your ADU project a reality. Contact us today to learn more about our financing solutions tailored to suit your budget and needs.

Frequently Asked Questions

An ADU unit, also known as an Accessory Dwelling Unit, is a secondary housing unit with complete independent living facilities for one or more individuals. It differs from a guest house in that ADUs are an established part of the primary residence, while guest houses are typically detached structures separated from the main home.

Ready To Get Started?

Contact ADU International today to explore the possibilities of owning your dream 1 Bedroom, 1 Bathroom ADU Unit and experience the transformation of your living space with our expert team of ADU specialists.