900 SFT ADU RENDER

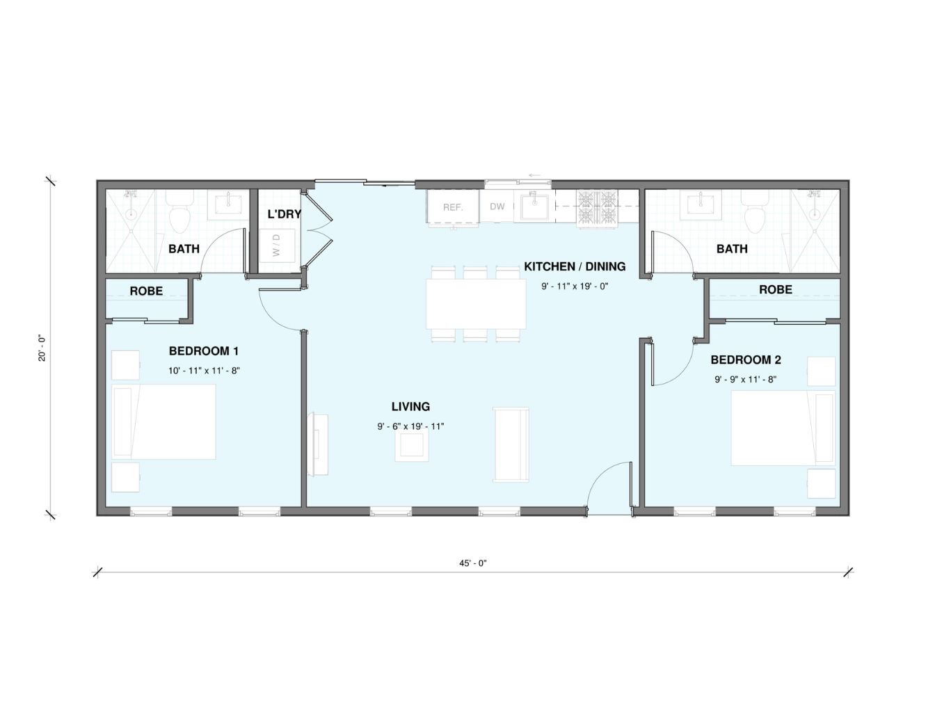
Floorplan Name: Monaco
"Monaco" evokes a sense of opulence and sophistication, perfect for a high-end living space. At 900 square feet, this unit is luxurious and elegant.

2 Bedroom with 2 Bathroom - 900 Square Foot

Welcome to ADU International, your premier destination for custom, detached Accessory Dwelling Units (ADUs) redefining modern living spaces. Our meticulously crafted 2-Bedroom with 2 Bathroom unit spanning 900 square feet represents the pinnacle of versatile and functional design tailored to your specific lifestyle needs. Discover how this exceptional living space at ADU International transcends traditional living expectations and elevates your home experience to new heights.

2 Bedroom with 2 Bathroom

2-Bed • 2 Bath • 900 SQ. FT

ADU International presents the epitome of quality craftsmanship and innovative design with our 2-Bedroom with 2 Bathroom ADU unit. Measuring at a spacious 20' - 0" x 45' - 0", this carefully curated living space offers an open layout that seamlessly integrates a modern kitchen/dining area and inviting living room, creating a harmonious environment for daily living and entertaining.

Boasting two separate bedrooms, each adorned with ample closet space to enhance organization and functionality, our 2-Bedroom with 2 Bathroom unit embraces convenience and privacy. The inclusion of two well-appointed bathrooms, strategically situated next to each bedroom, ensures utmost comfort and accessibility for residents and guests alike. Additionally, a dedicated laundry room adds a practical touch to streamline daily household tasks effectively.

The value of selecting a unit of this size extends beyond mere dimensions; it embodies a comprehensive living solution suitable for accommodating a small family, hosting guests with ease, or even generating rental income. Our expert ADU contractors at ADU International understand the importance of personalized living spaces and have meticulously crafted this unit to deliver a versatile living experience that seamlessly integrates into your property.

 

Beautifully Designed ADU Units with All Of The Features You Will Love

ADU UNIT FEATURES 1

Design and Plans Included

ADU UNIT FEATURES 2

Fully Custom Built on Your Property

ADU UNIT FEATURES 3

Open Concept Kitchen

ADU UNIT FEATURES 4

All Appliances Are Included

ADU UNIT FEATURES 5

A Full Bathroom

ADU UNIT FEATURES 6

Quartz Countertops

door

6 Panel Doors

ADU UNIT FEATURES 8

Board and Batten Siding

ADU UNIT FEATURES 9

Slow Close Cabinets and Drawers

ADU UNIT FEATURES 10

Mini Split Heating and Air System

ADU UNIT FEATURES 11

Composition Shingle Roof

ADU UNIT FEATURES 12

Design an ADU Unit that Matches Your Home

ADU UNIT FEATURES 13

Customizable Features

ADU UNIT FEATURES 14

Luxury Vinyl Flooring

Ready to get started?

Financing Options Available

ADU International offers flexible financing options tailored to suit your budget and requirements. Our team can guide you through the financing process, helping you explore options that make owning a detached ADU a reality.

Frequently Asked Questions

An ADU, or Accessory Dwelling Unit, is a separate living space equipped with its own kitchen, bathroom, and entrance, designed to be a standalone residence on the same property as a primary home. In contrast, a guest house typically serves as temporary accommodation for guests and may not always have full amenities. A home addition involves expanding an existing residence to increase living space but does not function as an independent living unit like an ADU.

Ready To Get Started?

Feel free to reach out to ADU International for more information or to begin planning your customized detached ADU project. Redefine your living space with our expert team of ADU specialists who are dedicated to bringing your vision to life.