756 SFT ADU RENDER

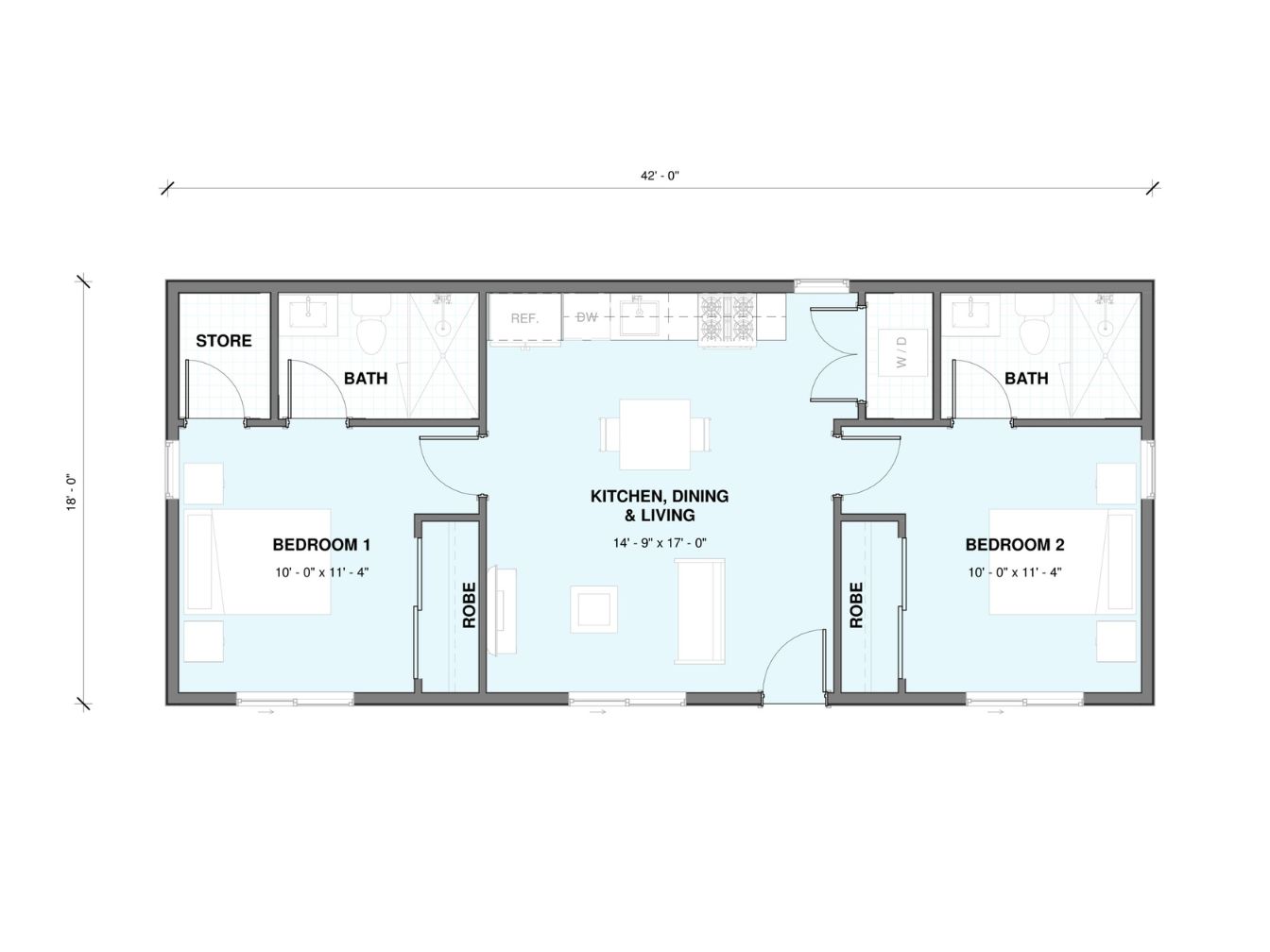
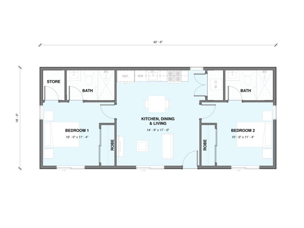
Floorplan Name: Catalina
"Catalina" suggests a home surrounded by natural beauty, perfect for an adventurous family. This unit's size is ideal for a family looking to enjoy a beautiful and spacious home.

2 Bedroom with 2 Bathroom - 756 Square Foot

Welcome to ADU International, where we redefine homeownership with our expertly crafted, beautifully designed accessory dwelling units (ADUs). We specialize in creating accessible and exciting ADU solutions for homeowners locally and beyond. Among our standout offerings is our exquisite two-bedroom, two-bathroom detached ADU, spanning 756 square feet of expertly utilized space. This unit seamlessly combines modern comfort, superior craftsmanship, and functional design, making it the perfect addition to any property.

2 Bedroom with 2 Bathroom

2-Bed • 2 Bath • 756 SQ. FT

Imagine stepping into a space where every inch is thoughtfully designed to enhance your living experience. Our 756-square-foot detached ADU boasts a spacious open concept that integrates the kitchen, dining, and living areas into a cohesive, inviting space. The kitchen, a chef's dream, features quartz countertops, a walk-in pantry, a peninsula for additional workspace, and all appliances included. French front entry doors and board and batten siding add a touch of elegance and curb appeal.

Each bedroom in this ADU is designed with comfort in mind, measuring 10' x 11'4", and includes a walk-in closet/robe for ample storage. The identical layout of the two full bathrooms ensures convenience and functionality, making this unit ideal for a variety of living arrangements — whether as a guest house, a rental property, or a home addition for extended family.

Our ADU units come with luxury vinyl flooring, slow-close cabinets and drawers, and a mini split heating and air system to ensure year-round comfort. The composition shingle roof provides durability and peace of mind. This detached ADU not only adds value to your property but also enhances your lifestyle with its high-quality finishes and thoughtful design.

Beautifully Designed ADU Units with All Of The Features You Will Love

ADU UNIT FEATURES 1

Design and Plans Included

ADU UNIT FEATURES 2

Fully Custom Built on Your Property

ADU UNIT FEATURES 3

Open Concept Kitchen

ADU UNIT FEATURES 4

All Appliances Are Included

ADU UNIT FEATURES 5

A Full Bathroom

ADU UNIT FEATURES 6

Quartz Countertops

door

6 Panel Doors

ADU UNIT FEATURES 8

Board and Batten Siding

ADU UNIT FEATURES 9

Slow Close Cabinets and Drawers

ADU UNIT FEATURES 10

Mini Split Heating and Air System

ADU UNIT FEATURES 11

Composition Shingle Roof

ADU UNIT FEATURES 12

Design an ADU Unit that Matches Your Home

ADU UNIT FEATURES 13

Customizable Features

ADU UNIT FEATURES 14

Luxury Vinyl Flooring

Ready to get started?

Financing Options Available

We understand that financing a home addition like an ADU can be daunting, which is why ADU International offers flexible financing options to make the process seamless. Our team is dedicated to helping you find the best financial solution to fit your budget, ensuring that your dream ADU is within reach.

Frequently Asked Questions

An accessory dwelling unit (ADU) is a secondary housing unit on a single-family residential lot. It can serve various purposes such as a guest house, rental property, or home addition.

Ready To Get Started?

At ADU International, we are committed to delivering exceptional quality, personalized service, and innovative designs. Our 2-bedroom, 2-bathroom detached ADU is more than just an addition to your property — it's a testament to our dedication to excellence and your unique vision for your home. Explore the possibilities with ADU International and redefine your living space today.