499 SFT ADU RENDER

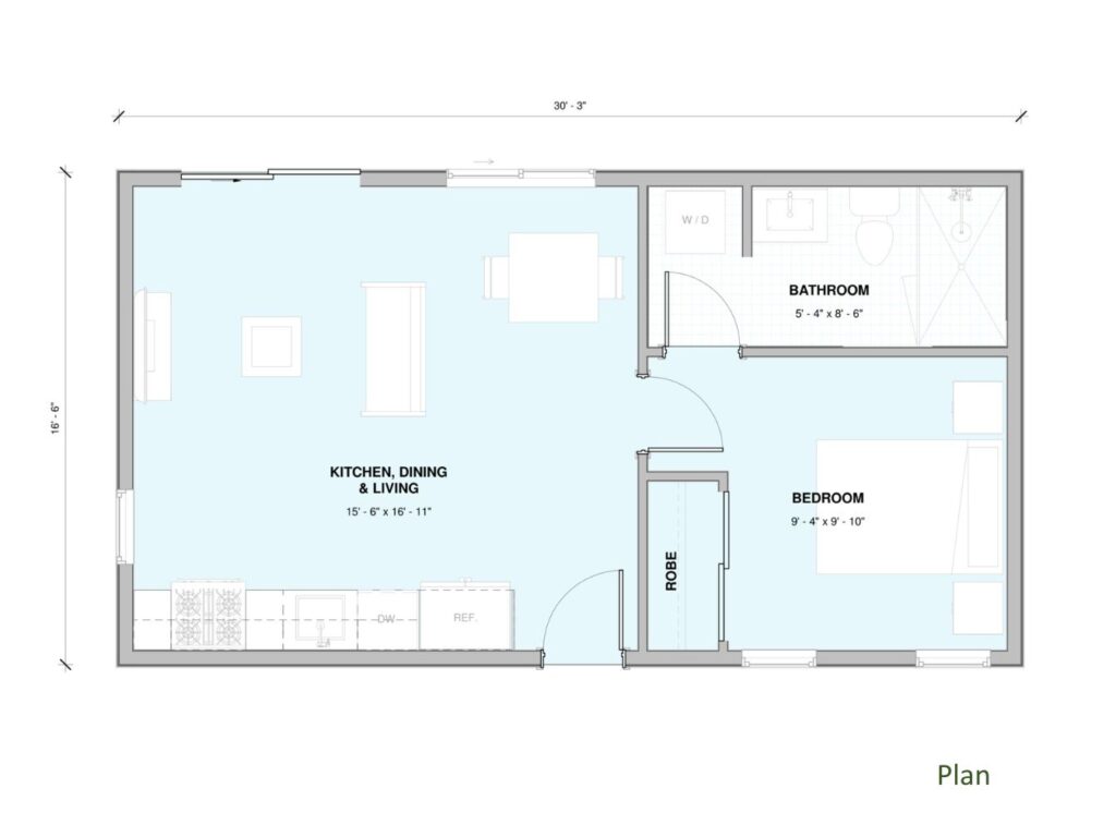
Floorplan Name: Marina
"Marina" evokes a sense of calm and coastal beauty, ideal for a tranquil one-bedroom retreat. This unit's size offers a relaxing and serene environment.

1 Bedroom with 1 Bathroom - 499 Square Foot

Elevate your living experience with ADU International's meticulously crafted 1-bedroom, 1-bathroom detached ADU unit spanning 499 square feet. As industry-leading ADU contractors, we're dedicated to reshaping homeownership by creating personalized living spaces that seamlessly blend functionality, aesthetics, and innovation. Our commitment to superior craftsmanship and design excellence ensures that your ADU experience surpasses all expectations, bringing a new level of comfort and versatility to your property.

1 Bedroom with 1 Bathroom

1-Bed • 1 Bath • 499 SQ. FT

Step into luxury with ADU International's meticulously designed detached ADU unit. The spacious living area seamlessly integrates a modern kitchen, inviting dining space, and a cozy living room. The kitchen, a culinary haven, boasts ample space for meal preparation and social gatherings, while the dining area offers a perfect setting to enjoy delicious meals with loved ones. Transitioning into the living room, you'll find a comfortable retreat ideal for relaxation and entertainment, creating a harmonious living space that caters to your lifestyle.

Enter the private sanctuary of the bedroom, a tranquil space designed for rest and rejuvenation. Nestled within the detached ADU unit, the bedroom offers a cozy retreat with thoughtfully placed windows that welcome natural light and fresh air, enhancing the overall ambiance. The intimate setting provides a peaceful escape from daily life, inviting you to unwind and recharge in comfort. Adjoining the bedroom is a modern and stylish bathroom, a well-appointed space that combines functionality with elegance, offering a spa-like experience within the confines of your home.

Indulge in the convenience of the robe/closet area, a practical addition to the detached ADU unit that enhances storage and organization. This versatile space provides ample room to store clothing, accessories, and personal belongings, ensuring a clutter-free environment and promoting efficient use of space. Whether you're looking to neatly organize your wardrobe essentials or declutter your living area, the robe/closet area offers a seamless solution to meet your storage needs, adding a touch of functionality to your detached ADU living experience.

Beautifully Designed ADU Units with All Of The Features You Will Love

ADU UNIT FEATURES 1

Design and Plans Included

ADU UNIT FEATURES 2

Fully Custom Built on Your Property

ADU UNIT FEATURES 3

Open Concept Kitchen

ADU UNIT FEATURES 4

All Appliances Are Included

ADU UNIT FEATURES 5

A Full Bathroom

ADU UNIT FEATURES 6

Quartz Countertops

door

6 Panel Doors

ADU UNIT FEATURES 8

Board and Batten Siding

ADU UNIT FEATURES 9

Slow Close Cabinets and Drawers

ADU UNIT FEATURES 10

Mini Split Heating and Air System

ADU UNIT FEATURES 11

Composition Shingle Roof

ADU UNIT FEATURES 12

Design an ADU Unit that Matches Your Home

ADU UNIT FEATURES 13

Customizable Features

ADU UNIT FEATURES 14

Luxury Vinyl Flooring

Ready to get started?

Financing Options Available

Empowering your ADU journey is our priority, which is why ADU International offers tailored financing options to fit your budget and needs. Our team of experts will guide you through the financing process, ensuring transparency and efficiency every step of the way. By partnering with us, you can turn your detached ADU vision into a reality without any financial constraints, making homeownership dreams achievable and stress-free.

Frequently Asked Questions

An ADU is a secondary residential unit that can be constructed on a single-family property, offering independent living space.

Excited to begin?

Are you excited to enhance your home with a customized ADU? Get in touch with ADU International now to book your consultation and kickstart the process of redesigning your living area.